首页 > 伙办办公 > 精品装修

< >

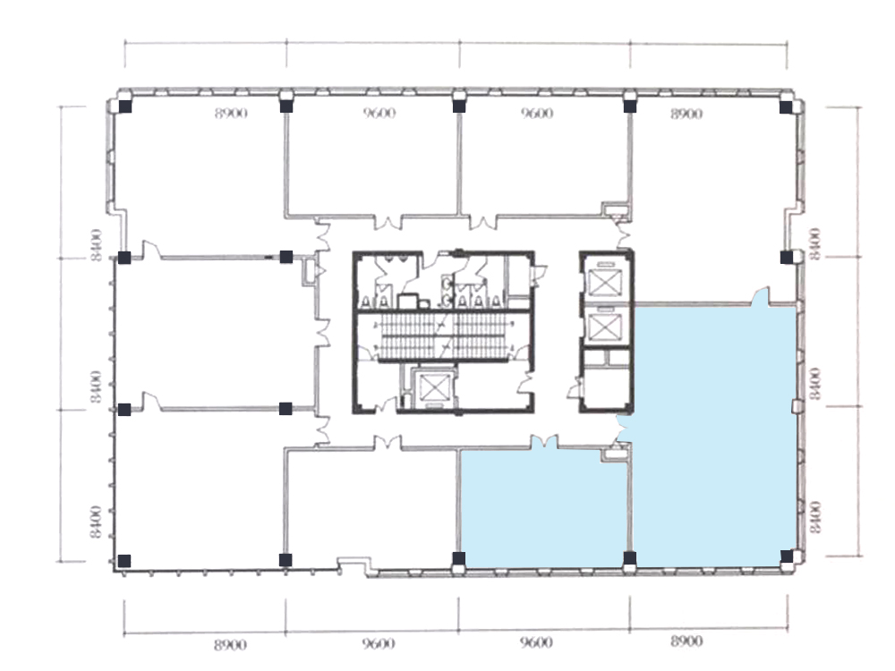
精品中户型-87878888

租   2.06 元/m 2 /天      

售   14013 元/m 2




面积     281.8m² | 毛坯


地址 :二道区东盛大街与荣光路交汇处




分期 :总贷款额: 万元


           分期手续费:    %


           每期还款额:    元

查看项目>

基本信息

物业费:8元/m²/天

楼层:6

地面:毛坯

墙壁:毛坯

网络:光纤

取暖费:36元/m²

朝向:朝西、南侧

交房时间:现房

天棚:毛坯

入户门:玻璃门

预约看房

24小时客服电话
400-716-0164